Виброфлекс SML
Виброфлекс SML с шпилькой M12 предназначены для виброизоляции инженерного
оборудования с целью защиты от структурного шума. Опора обеспечивает
высокую виброизоляцию благодаря использованию упругих элементов из
полиуретанового эластомера.
Предельная статическая нагрузка от 26 до 1354 кг в зависимости от модели.





Виброфлекс SML
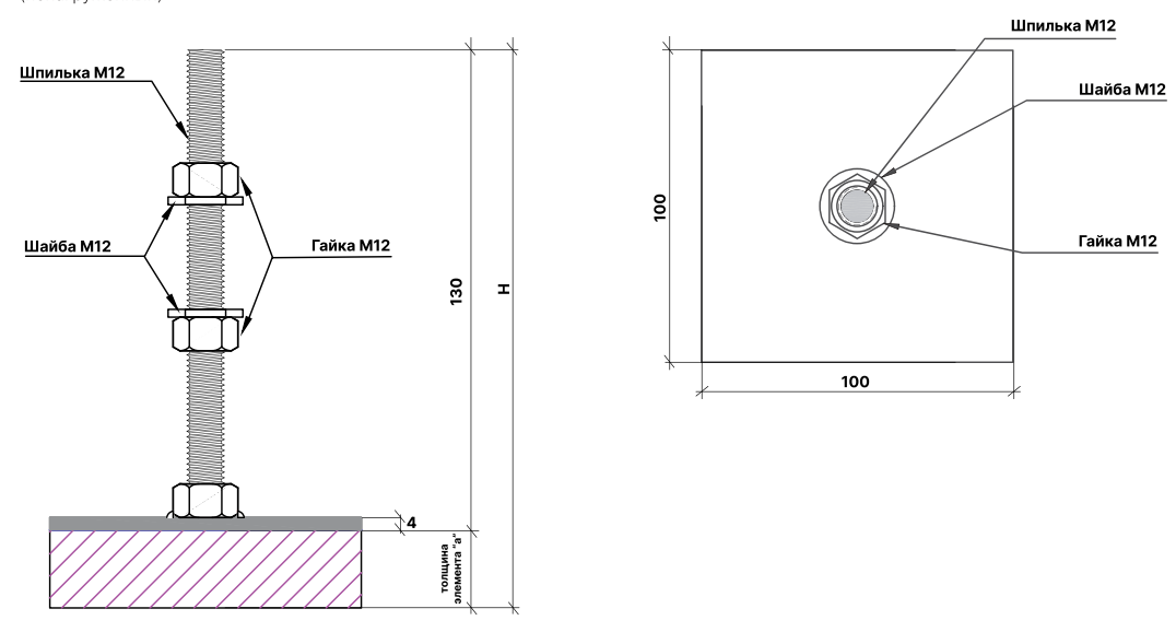
Виброизолирующая опора Виброфлекс SML представляет собой готовое решение, предназначенное для виброизоляции инженерного оборудования, а также для регулировки высоты и выравнивания оборудования.
Отличительные особенности
- Быстрая установка
- Унифицированный размер
- Широкий диапазон нагрузок
Состав
Распределительная пластина: прочная сталь с порошковым покрытием
Упругий элемент: полиуретановый эластомер
Применение
- Вентиляционные установки;
- Чиллеры на кровле;
- Насосы циркуляционные;
- Опоры под оборудование HVAC;
- Приточно-вытяжные установки;
- Насосы отопления и ГВС;
- Внешние блоки VRV/VRF;
- Прочие.
Видео-обзоры по теме
Виброфлекс — виброизолирующие подвесы и крепления
Виброизоляция инженерного оборудования, которая работает
Виброфлекс - виброизолирующие крепления и подвесы
Самая тонкая конструкция ЗИ потолка
САУНДЛАЙН-dB и ВИБРОФЛЕКС-Wave
Виброфлекс - виброизолирующие крепления и подвесы
Акустический триплекс САУНДЛАЙН-dB и профиль ВИБРОФЛЕКС-Wave. Технология монтажа
Особенности применения материала
- Вентиляционные установки;
- Чиллеры на кровле;
- Насосы циркуляционные;
- Опоры под оборудование HVAC;
- Приточно-вытяжные установки;
- Насосы отопления и ГВС;
- Внешние блоки VRV/VRF;
- Прочие.
Характеристики продукта
| Наименование | Предельная нагрузка, кг | Собственная частота при 1/2 нагрузке, Гц | Собственная частота при предельной нагрузке, Гц | Осадка при 1/2 нагрузке, мм | Осадка при предельной нагрузке, мм |
|---|---|---|---|---|---|
| Виброфлекс SML 25/12,5 | 28 | 38,2 | 18,7 | 1 | 2,3 |
| Виброфлекс SML 25/25 | 27 | 25,1 | 12,7 | 2,1 | 4,6 |
| Виброфлекс SML 25/50 | 26 | 16,1 | 8,4 | 4,2 | 9,2 |
| Виброфлекс SML 55/12,5 | 55 | 31,5 | 17,2 | 1,1 | 2,3 |
| Виброфлекс SML 55/25 | 53 | 20,8 | 11,5 | 2,2 | 4,7 |
| Виброфлекс SML 55/50 | 50 | 13,6 | 7,8 | 4,4 | 9,3 |
| Виброфлекс SML 100/12,5 | 109 | 28,8 | 17 | 1,1 | 2,3 |
| Виброфлекс SML 100/25 | 102 | 19,3 | 11,6 | 2,2 | 4,7 |
| Виброфлекс SML 100/50 | 93 | 13 | 8,1 | 4,4 | 9,2 |
| Виброфлекс SML 200/12,5 | 216 | 24,8 | 15,5 | 1,1 | 2,4 |
| Виброфлекс SML 200/25 | 195 | 17,1 | 10,7 | 2,2 | 4,8 |
| Виброфлекс SML 200/50 | 172 | 11,8 | 7,5 | 4,4 | 9,5 |
| Виброфлекс SML 400/12,5 | 433 | 23,2 | 15,6 | 1,1 | 2,4 |
| Виброфлекс SML 400/25 | 377 | 16,1 | 10,8 | 2,3 | 4,7 |
| Виброфлекс SML 400/50 | 322 | 11,2 | 7,6 | 4,5 | 9,4 |
| Виброфлекс SML 65/12,5 WX | 74 | 23,5 | 14,8 | 1,1 | 2,1 |
| Виброфлекс SML 65/25 WX | 65 | 16,6 | 10,5 | 2,3 | 4,2 |
| Виброфлекс SML 65/50 WX | 56 | 11,8 | 7,6 | 4,6 | 8,3 |
| Виброфлекс SML 130/12,5 WX | 148 | 21,4 | 13 | 1 | 2,2 |
| Виброфлекс SML 130/25 WX | 132 | 14,9 | 9,2 | 2 | 4,5 |
| Виброфлекс SML 130/50 WX | 113 | 10,6 | 6,8 | 4,1 | 8,9 |
| Виброфлекс SML 300/12,5 WX | 334 | 20,3 | 13,9 | 1,1 | 2,1 |
| Виброфлекс SML 300/25 WX | 290 | 14,3 | 9,7 | 2,1 | 4,3 |
| Виброфлекс SML 300/50 WX | 241 | 10,2 | 7 | 4,3 | 8,6 |
| Виброфлекс SML 550/12,5 WX | 691 | 19,8 | 13,9 | 1,1 | 2,1 |
| Виброфлекс SML 550/25 WX | 535 | 13,9 | 9,8 | 2,1 | 4,2 |
| Виброфлекс SML 550/50 WX | 419 | 9,9 | 6,9 | 4,2 | 8,4 |
| Виброфлекс SML 1000/12,5 WX | 1354 | 19,4 | 13,6 | 1,1 | 2,2 |
| Виброфлекс SML 1000/25 WX | 963 | 13,7 | 9,6 | 2,2 | 4,4 |
| Виброфлекс SML 1000/50 WX | 713 | 9,7 | 6,8 | 4,3 | 8,6 |
*WX — в моделях Виброфлекс SML применяется эластомер с закрытой ячеистой структурой.
Предназначено для эксплуатации на открытом воздухе, устойчив к влагопоглощению.

Эффективность виброизоляции
Снижение передаваемых механических колебаний за счет использования упругой опоры из Sylomer/Sylodyn
Параметр: коэффициент передачи в дБ, коэффициент изоляции в %
Форм-фактор q=3

| Пример обозначения | Толщина упругого слоя, мм | Высота виброопоры (H), мм |
|---|---|---|
| Виброфлекс SML 25/12,5 | 12,5 | 142,5 |
| Виброфлекс SML 25/25 | 25 | 155 |
| Виброфлекс SML 25/50 | 50 | 180 |
Цены с отгрузкой со склада в Москве
| Название | Ед. изм. | Цена, ₽/ед. | Цена, |
|---|---|---|---|
|
Виброфлекс SML 25/12,5
Предельная нагрузка - 28 кг
|
шт. | 1006.05 | |
|
Виброфлекс SML 25/25
Предельная нагрузка - 27 кг
|
шт. | 1290.40 | |
|
Виброфлекс SML 25/50
Предельная нагрузка - 26 кг
|
шт. | 1970.80 | |
|
Виброфлекс SML 55/12,5
Предельная нагрузка - 55 кг
|
шт. | 1132.99 | |
|
Виброфлекс SML 55/25
Предельная нагрузка - 53 кг
|
шт. | 1564.59 | |
|
Виброфлекс SML 55/50
Предельная нагрузка - 50 кг
|
шт. | 2519.18 | |
|
Виброфлекс SML 100/12,5
Предельная нагрузка - 109 кг
|
шт. | 1270.09 | |
|
Виброфлекс SML 100/25
Предельная нагрузка - 102 кг
|
шт. | 1864.17 | |
|
Виброфлекс SML 100/50
Предельная нагрузка - 93 кг
|
шт. | 3118.34 | |
|
Виброфлекс SML 200/12,5
Предельная нагрузка - 216 кг
|
шт. | 1402.11 | |
|
Виброфлекс SML 200/25
Предельная нагрузка - 195 кг
|
шт. | 2133.29 | |
|
Виброфлекс SML 200/50
Предельная нагрузка - 172 кг
|
шт. | 3656.57 | |
|
Виброфлекс SML 400/12,5
Предельная нагрузка - 433 кг
|
шт. | 1686.46 | |
|
Виброфлекс SML 400/25
Предельная нагрузка - 377 кг
|
шт. | 2630.89 | |
|
Виброфлекс SML 400/50
Предельная нагрузка - 322 кг
|
шт. | 4651.78 | |
|
Виброфлекс SML 65/12,5 WX
Предельная нагрузка - 74 кг
|
шт. | 1457.96 | |
|
Виброфлекс SML 65/25 WX
Предельная нагрузка - 65 кг
|
шт. | 2189.14 | |
|
Виброфлекс SML 65/50 WX
Предельная нагрузка - 56 кг
|
шт. | 3768.28 | |
|
Виброфлекс SML 130/12,5 WX
Предельная нагрузка - 148 кг
|
шт. | 1925.10 | |
|
Виброфлекс SML 130/25 WX
Предельная нагрузка - 132 кг
|
шт. | 3052.33 | |
|
Виброфлекс SML 130/50 WX
Предельная нагрузка - 113 кг
|
шт. | 5494.67 | |
|
Виброфлекс SML 130/12,5 WX
Предельная нагрузка - 334 кг
|
шт. | 2128.21 | |
|
Виброфлекс SML 300/25 WX
Предельная нагрузка - 290 кг
|
шт. | 3448.39 | |
|
Виброфлекс SML 300/50 WX
Предельная нагрузка - 241 кг
|
шт. | 6286.78 | |
|
Виброфлекс SML 550/12,5 WX
Предельная нагрузка - 691 кг
|
шт. | 2488.72 | |
|
Виброфлекс SML 550/25 WX
Предельная нагрузка - 535 кг
|
шт. | 4098.32 | |
|
Виброфлекс SML 550/50 WX
Предельная нагрузка - 419 кг
|
шт. | 7586.65 | |
|
Виброфлекс SML 1000/12,5 WX
Предельная нагрузка - 1354 кг
|
шт. | 2569.96 | |
|
Виброфлекс SML 1000/25 WX
Предельная нагрузка - 963 кг
|
шт. | 4215.11 | |
|
Виброфлекс SML 1000/50 WX
Предельная нагрузка - 713 кг
|
шт. | 7820.22 |
Обратите внимание
На сайте указаны рекомендованные розничные цены. Цены действительны для выбранного города. Почему цены в разных городах отличаются?
Если нужного города нет в списке городов нашего сайта или в таблице указано, что цена предоставляется по запросу, отправьте индивидуальный запрос на расчет стоимости.
Где купить?
Запрос на расчет стоимости
Почему цены в разных городах отличаются?
Дело в том, что на стоимость строительных материалов сильно влияют логистические расходы. Если производство находится в другом городе или сырье привозят издалека, то стоимость готовой продукции окажется выше. Для габаритных материалов и материалов, которые требуют аккуратности при транспортировке (например, шпонированные панели), этот фактор особенно критичен.
Можно ли сэкономить при покупке материалов?
Да. И речь не про скидки и акции, которые надо ловить, а про разумное потребление. На наших складах не редко появляются материалы, имеющие те или иные повреждения (например, сколы). Такие материалы все еще можно использовать во многих случаях. К примеру, при монтаже любых панелей, ГКЛ/ГВЛ, ЗИПСов обязательно возникает необходимость обрезки под размеры стен. И в таких ситуацих частичное повреждение панели совершенно не критично. В то же время, материалы с повреждениями продаются с существенной уценкой. Проверить наличие подходящих вам уцененных товаров на ближайшем складе можно на сайте:
Файлы для скачивания
Сертификаты и протоколы
Информация по продукту
Техническая информация
Не нашли, что искали? Спросите у нас!
Подпишитесь на рассылку, чтобы быть в курсе новинок, акций, скидок!
Вы сможете получать информацию о наших продуктах, а также узнавать о последних тенденциях в области шумоизоляции.